Продається 2к квартира в ЖК Нова Англія, буд. Лінкольн, зданий! (№ 213-095-581)
Ціна: 3 799 530 грн.

Михайла Максимовича, 24, Київ, Голосіївський, м. Васильківська
Характеристики
| Ціна: | 3 799 530 грн. |
|---|---|
| № об'єкта: | 213-095-581 |
| Кімнат: | 2 розд |
| Поверх: | 16 / 21 ліфт |
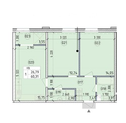
| Площа: | 60,31 / 26,8 / 15,75 м2 |
| Санвузол: | 2 роздільний |
| Балкон: | лоджія |
| єОселя: | - |
| Ремонт: | Без |
Опис
Простора двокімнатна квартира в ЖК “Нова Англія”!
Продається квартира з роздільним плануванням у сучасному житловому комплексі “Нова Англія”! Будинок “Лінкольн” вже введено в експлуатацію 24 квітня 2024 року.
Локація: Київ, вул. М. Максимовича, 24
Площа: 60,31 кв. м
Поверх: 16/21
Вид: на Паркленд
Переваги квартири:
• Функціональне планування:
• Спальні: 14 кв. м і 12,7 кв. м
• Кухня-вітальня: 15,7 кв. м
• Два санвузли: 3,9 кв. м і 2,9 кв. м
• Передпокій: 7,4 кв. м
• Лоджія: 3,5 кв. м
• Стан: без ремонту – можливість реалізувати дизайн своєї мрії!
• Комфорт: автономне опалення та вентиляція
• Розвинена інфраструктура: магазини, кафе, спортзали, парки для прогулянок
• Зручна локація: близькість до транспорту, шкіл та медичних закладів
Покупець не сплачує податки!
Комісія – 2%
Телефонуйте та домовляйтесь про перегляд!























